
UNIVERSITY PROJECT
PROJECT DESCRITION - SEMESTER TWO ARCHITECTURAL DESIGN ASSIGMENT
In Semester 2, I was assigned a comprehensive architectural design project focused on a real site located in Wood Green, London. As part of the assignment, my classmates and I conducted an on-site visit where we carefully observed the surrounding urban context, documented existing structures, and gathered essential measurements and environmental data. This hands-on research provided a strong foundation for understanding the site’s characteristics, constraints, and potential.
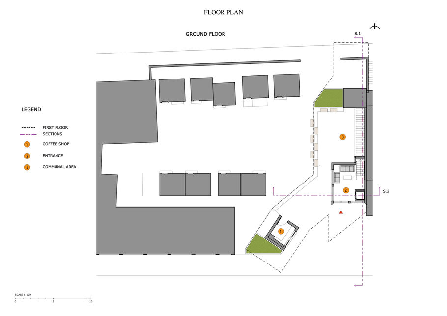
The core objective of the project was to design a new building within the given site boundaries, taking into full consideration the needs of two selected local artists. These artists were chosen based on their engagement with the community and their specific spatial and functional requirements for their creative practices. The building had to serve as both a working and exhibition space, while also embodying sustainable and environmentally responsible design principles.
My design process began with in-depth research on the artists’ work, their studio needs, and the social role of art within the community. I then moved on to developing conceptual sketches and rough models that explored different spatial configurations and material palettes. Iterative design thinking played a major role, allowing me to refine the project across multiple stages.
Throughout the semester, I produced floor plans, elevation drawings, and digital models to visualize and test my design. A key aspect of the process was also the creation of a 3D-printed scale model, which helped convey the physical presence and architectural language of the final proposal. The final design outcome aimed to integrate seamlessly with the surrounding urban fabric while providing an inspiring, functional, and environmentally sustainable space for artistic creation and community engagement.
This project not only enhanced my technical and creative skills but also deepened my understanding of site-specific architecture, user-centered design, and ecological responsibility in contemporary building practices.














































